基礎断面図(立ち下げ部等配筋詳細図) がけ面に平行な軸組みの間隔:l = 455 m 壁筋 タテ筋d10@250シングル 5 べた-軽・軽-1.4m がけ面平行タイプ立ち下げ基礎(h=1.4m)標準図 上部建築物:木造2階建住宅 屋根材軽(スレート葺等)、外壁材軽(サイディング) 上部基礎形木造住宅用標準納まり図を使用するにあたって (木造住宅建築確認申請用等の構造詳細標準図) この標準納まり図は、木造住宅を設計・施工する場合や建築基準法に基づく建 築確認申請図書及び品確法(住宅の品質確保促進等に関する法律)に基づく設計 住宅性能評価申請図書の構造詳細図�図1 枠組壁工法およぴRC造の 重量床衝撃音レベル (a)枠組壁工法(1):力天井 (b)枠組壁工法(2):独立遮音天井 (d)RC造(2):二重床 (単位:mm) (c)RC造(1):組床 図2 床構造の断面図 木造住宅での重量床衝撃音対策 木造住宅で重量床衝撃音を低減させることは,RC 造に比べて
3
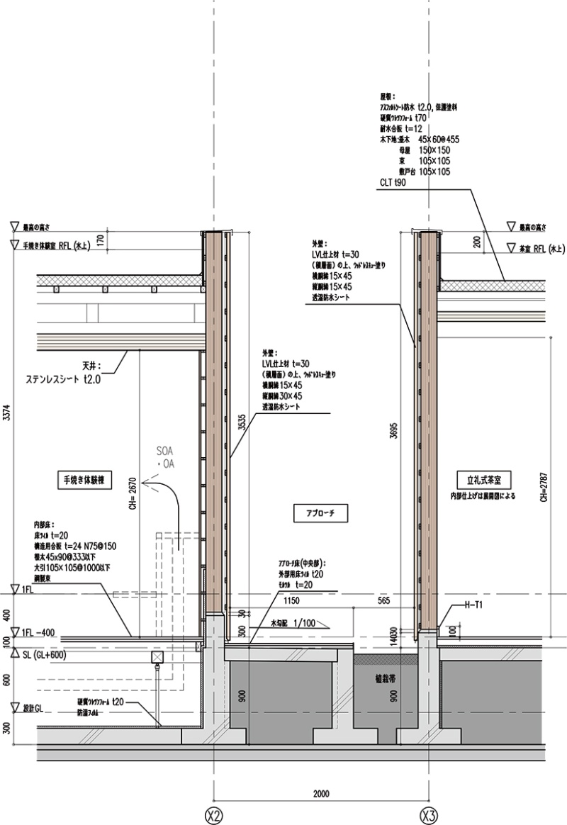
木造住宅 壁 断面図
木造住宅 壁 断面図-木造住宅用標準納まり図を使用するにあたって (木造住宅建築確認申請用等の構造詳細標準図) この標準納まり図は、木造住宅を設計・施工する場合や建築基準法に基づく建築確認申 請図書及び品確法(住宅の品質確保促進等に関する法律)に基づく設計住宅性能評価申請 図書の構造詳細図�木造矩計図・断面図編 木造住宅の平面図、屋根伏図、天井伏図、配置図のデータをもとに、切断位置を指定して矩計図・ 断面図の作成手順を解説します。 矩計図・断面図ではクランク切断による図面作成、斜線制限の作図なども可能です。




木造住宅の断面詳細図 納まり図集
住宅の設計、新築・リフォームの参考図が欲しい。 設計事務所やハウスメーカーの使うプロ仕様ってどう? 施主だけど収まりをを知りたい。 納まり図集では図面の収まり図の解説をします。 お役立ちサイトもわかりやすく分類 納まり図面の解説と誰で木造住宅用標準納まり図を使用するにあたって (木造住宅建築確認申請用等の構造詳細標準図) この標準納まり図は、木造住宅を設計・施工する場合や建築基準法に基づく建築確認申 請図書及び品確法(住宅の品質確保促進等に関する法律)に基づく設計住宅性能評価申請 図書の構造詳細図�《図面の見方6 断面詳細図(だんめんしょうさいず)》 建物の高さ関係の納まりを表わした詳細な図面が、矩計図(かなばかりず)または、断面詳細図(だんめんしょうさいず)と言われる図面です。 基礎、床組み(床構成)、小屋組み、建具、枠などの寸法・納り・仕様など、壁や屋根
② ケーススタディ タイプb 1~4階平面混構造(鉄筋コンクリート造+木造、約3,000 ㎡) ③上記②を全て木造にした場合(木造、約3,000 ㎡) ④比較用として、平成22年度に設計した純木造0 ㎡、純木造750 ㎡の2例 252 木造耐火建築物の環境負荷性能の評価立面図 矩計図・断面図・屋根伏図 耐力壁線図 壁量計算 必要接合部倍率計算結果 各構造伏図・基礎リスト・構造特記事項 各構造伏図 軸組図 耐力壁接合部引抜力計算シート木造住宅 壁 断面図 木造矩計図・断面図編 木造住宅の平面図、屋根伏図、天井伏図、配置図のデータをもとに、切断位置を指定して矩計図・ 断面図の作成手順を解説します。 矩計図・断面図ではクランク切断による図面作成、斜線制限の作図なども可能です 凡例(壁他)及び耐火,防火別LGS




円 四角 三角 高槻 茨木で最高の新築や注文住宅を建て続けるバァーナホーム



木造住宅の外壁構造 外壁工法 及び 既存外壁のリフォーム方法



とやまアイホーム 会社情報 富山 自由設計注文住宅のハウスメーカー




木造住宅の壁に使われている充填工法 窯業系サイディング




地震に強い家 ウッドワンを知る Woodone




構造 工法 有限会社大勝 Dai Sho 埼玉県 東京都の戸建て住宅や店舗の施工はdai Sho




天井裏の構造を解説する三連載の第一弾 木造 w造 編 です とある建築士の憂鬱



一般的な壁工法 木造下地 工法 吉野石膏




壁の中のこと 後編 沖縄で安心の木造住宅をつくるならin Tree




木造建築の実務者をどう育てるか 後編 2ページ目 日経クロステック Xtech




知ってるようで知らなかった 壁の種類と中身 マンションデータplus トレンド コラム Byノムコム




木造軸組構法 Wikipedia




壁とは コトバンク




窯業系 金属サイディング モルタル外壁の構造とその断面図 東京の外壁塗装 屋根塗装 塗り替えは街の外壁塗装やさん東東京店へ




パナソニック 知らせ立場 Fasus Int 人屋垣埋め込み専機能 木造サイディング施工用 Ctcr2300 Panasonic Newbyresnursery Com




工法 木にこだわった住まいづくり 木にこだわった新築 一戸建て 注文住宅のことならカバヤホーム




知ってるようで知らなかった 壁の種類と中身 マンションデータplus トレンド コラム Byノムコム




木造軸組工法の水平構面に枠組壁工法用製材を用いる Cofi



木造住宅の外断熱工法 外張り断熱 屋根断熱 基礎断熱 神奈川 横浜 東京



ツーバイフォー協会認定による外壁 枠組 工法 吉野石膏




バルコニーと手すり壁 日経クロステック Xtech




結露していても わからない家 姫路の工務店 クオホーム 瀬崎英仁の長持ちするブログ



1




よくあるご質問 サポート 吉野石膏




木造軸組構法 Wikipedia



1




木造住宅の壁に使われてる外張り工法 窯業系サイディング



工法のご紹介 太陽光発電 注文住宅のサンライズ株式会社



2




木造建築 壁の構造を知ろう ちくふる




平面詳細図 壁の躯体厚 仕上厚 断熱材表現の有無などを確認したい Ver 6 Ad 1 Cpu 詳細図面 施工図 平面図




木造住宅の断面詳細図 納まり図集




壁 構造 間柱 Kbreckpaperdoll Com




木造住宅の壁に使われてる外張り工法 窯業系サイディング




住宅建物のコンクリート造基礎と木造土台1階床の地面高さ寸法 北島建築設計事務所




告示の遮音性能が基準不適合 日経クロステック Xtech



省エネ住宅に向いているツーバイフォー工法 大利木材



住宅性能表示 耐震等級 耐風等級




4 在来軸組工法住宅と枠組み壁工法住宅の図




安心構造 三世帯casa家族愛編



1




木造軸組構法 Wikipedia



乾式2重床の木造最高レベル遮音システム 軽量で施工も容易 新建材 Built



Sanki Haus サンキハウス 楽暮ブログ 家のしくみ




これでは効かない通気層 結露の原因シリーズ 浜松 名古屋 豊橋で健康住宅の一戸建て 注文住宅ならアイジースタイルハウス




せっこうボードを使った省令準耐火構造のすすめ 知れば知るほどナットク サポート 吉野石膏




木造住宅の壁に使われてる外張り工法 窯業系サイディング




外壁構成 外壁 カテゴリー内一覧 建築設計研究所




安心の工法 快適の性能 旭川の注文住宅 新築一戸建ては 菅原建設




17 号 木造建築物の外周壁構築工法 Astamuse




うす壁をつくる方法 納まり図集



壁式ラーメン構造建物




17 号 木造建築物の外周壁構築工法 Astamuse




矩計寸法の確認 住宅設計のための伏図チェックマニュアル すむすむ Panasonic




住宅性能について 断熱構造 三井の森 別荘建築




矩計図 かなばかりず とは 住宅建築用語の意味 施工図 建築 詳細図面




木造住宅の壁に使われているeps湿式外断熱工法用断熱材



日本には様々な構造があります 現在の住宅で使用されている主な構造は次の5つです 大和市で外壁塗装 屋根塗装 住宅リフォームなら日本総合住設



2




構造と性能 株式会社ライトプラン 秋田 新築住宅 建替 リフォーム リノベーション



3




日記 3 とろちゃん 古河林業で建築 そしてその後




木造住宅の壁に使われてる外張り工法 窯業系サイディング




木造clt複合壁の遮音性能 の大臣認定取得 ニュース一覧 熊谷組




11 号 木造住宅の籾殻壁断熱工法 Astamuse



2



5つのコンセプト クローバーハウスジャパン



木造住宅の籾殻壁断熱工法




外壁通気構法 自然素材の家 こだわりの工法 山口で新築 リフォームを考えるならスタジオセンス




アイジーサイディング 木造下地 軸組工法 防火構造 防耐火認定図書 アイジー工業株式会社



木造建物の外張り断熱透湿外壁構造




4 在来軸組工法住宅と枠組み壁工法住宅の図




知ってるようで知らなかった 壁の種類と中身 マンションデータplus トレンド コラム Byノムコム




戸建て 壁 構造 Kbreckpaperdoll Com




矩計図とはどんな図面 読み方は 戸建住宅を建てるときに必要になる図面の1つ 住まいのお役立ち記事




家 骨組み 名称 Amrowebdesigners Com




住まいづくり研究室 木造住宅のつくり方 柱 壁部分2 壁のつくりかた



腰壁構造について




在来木造住宅 耐力壁計算書作成 その他専門コンサルティング ランサーズ




木造住宅のメリット デメリットを徹底解説 木造軸組工法やツーバイフォー 2 4 工法の耐震性 耐火性は 住まいのお役立ち記事




木造の平面詳細図 一般図の作成時の注意点 How To Use Archicad




木造住宅のメリット デメリットを徹底解説 木造軸組工法やツーバイフォー 2 4 工法の耐震性 耐火性は 住まいのお役立ち記事




長手方向生かす混構造 日経クロステック Xtech




14 号 現場発泡プラスチックの自己接着力による木造建築物壁構造の耐湿 耐震強化と外壁脱落被害軽減および施工方法 Astamuse




製品の特長 ホームズ君 構造ex 木造構造計算ソフト 長期優良住宅 許容応力度 平成28年省エネ基準




X Knowledge 建築知識 12 08 立体図で見る 木造住宅の納まり 図鑑




木造住宅の壁に使われてる外張り工法 窯業系サイディング



木造住宅のための断熱 気密ナビ Ykkap ディテール 設計 設計で性能を上げる




構造と技術 Kabaya2 4




木造住宅の壁に使われている充填工法 窯業系サイディング



2 無結露住宅 Rimcl100住宅 湘南の注文住宅 リフォーム ダンハウス株式会社




告示の遮音性能が基準不適合 日経クロステック Xtech




矩計図とはどんな図面 読み方は 戸建住宅を建てるときに必要になる図面の1つ 住まいのお役立ち記事




木造住宅の壁に使われてる外張り工法 窯業系サイディング




間柱とは 寸法や間隔はどう調べればいい 住まいのお役立ち記事



2




16 号 木造建物及びその外周壁構造 Astamuse




07 号 二重壁構造により外断熱施工された建築物および建築方法 Astamuse



有限会社 コンノ建設



木住協認定による外壁の例 軸組 工法 吉野石膏




03 号 木造建築物の壁構造 Astamuse



施工不良の高気密高断熱がもたらす 家の短命化 中西工務店 グリーン サスティナブル 沼津市 三島市を中心に静岡県東部地域で注文住宅 リフォームのデザイン設計施工



筋交いとは 1分でわかる役割 効果 寸法 ブレースとの違い




16 号 木造建物及びその外周壁構造 Astamuse
No comments:
Post a Comment